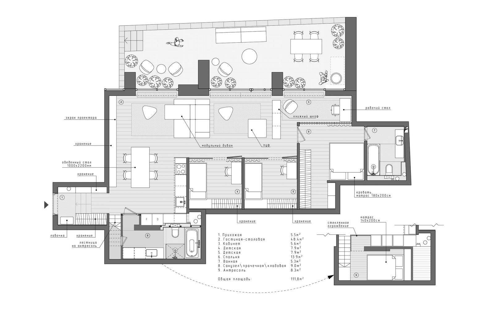
Enterijer stana od 112m2 u centru Moskve, sa jednim fasadnim zidom koji se otvara prema dvorištu, bio je projektni zadatak studija INT2 Architecture koji su mu pristupili na svoj prepoznatljiv način, kombinovanjem stilova i materijala.
Jednostrana orijentacija stana predstavljala je najveći izazov, jer je trebalo organizovati prostor sa osvetljenjem koje dolazi samo sa jedne strane.
Polazna ideja projekta bila je da se očuva originalni prostor dnevne sobe, sa tri velika otvora celom visinom zida, preko kojih se pristupa dvorišnoj terasi.
__modularna%20sofa.jpeg)
Shop the look: modularna garnitura Bethoven
Funkcionalna šema je napravljena na način da su dužinom zida organizovani dnevni boravak i radni prostor, povezani sa kuhinjom i trpezarijom, i direktno osvetljeni, dok su spavaće sobe u povučene i indirektno osvetljene zahvaljujući staklenim pregradama sa kliznim vratima.
_dnevna%20soba.jpeg)
Shop the look: dizajnerski klub sto od punog drveta
Radi udobnosti i privatnosti, staklene pregrade su napravljene od najkvalitetnijih materijala, povećane debljine i zvučne izolacije, dvostruko zastakljene. Lagane, svetle zavese sa unutrašnje strane omogućavaju da se prostor dodatno otvori ili zatvori, prema potrebi.
_staklene%20pregrade.png)
Pregrađivanjem staklenim zidom, formirane su dve dečije i jedna master spavaća soba sa svojim kupatilom.
Radni kutak smešten je ispred master sobe, a u nastavku dnevnog boravka od kog je odvojen pregradnim panelom koji je sa jedne strane polica za kućnu kancelariju.
_radna%20soba.png)
Shop the look: dizajnerska fotelja na okretanje
Sa druge strane, pregrada je dobila funkciju izložbenog panoa, u skladu sa umetničkim afinitetima porodice.
_staklene%20pregrade.jpeg)
U osnovi otvorenog plana, na dnevnu zonu se nadovezuje otvorena kuhinja sa trpezarijom. Centralno mesto, i fokus celog prostora, predstavlja masivni drveni rezbareni sto, koji kao da se direktno iz neke prošle epohe spustio u ovo moderno okruženje.
_drveni%20sto.jpeg)
Shop the look: Enviro stolice od punog drveta
Pogledajte još:
Ogoljeni zidovi od cigle u modernom enterijeru: susret dve stilske epohe u jednom stanu
Kuhinja je moderno opremljena, minimalističkih linija, sa ugradnim elementima i rađena po meri, od poda do plafona. Zidne obloge u dezenu mermera i zlatni detalji daju joj notu luksuza.
_bela%20kuhinja.jpeg)
Pažljivo isplanirani i uklopljeni u dizajn, dodatni skriveni prostori unapredili su funkcionalnost celog stana maksimalno iskoristivši prostor, uprkos projektantskim nedostacima koji su zatečeni.
__skriveni%20prostori.jpeg)
Visina prostora je iskorišćena za formiranje dodatnog prostora, spavaće sobe na galeriji, do koje se dolazi stepenicama pored skrivene vešernice. Udobno opremljen i ušuškan prostor može da posluži kao gostinska soba, ili kao mesto za povlačenje i mir.
_krevet%20na%20galeriji.jpeg)
Da ništa nije prepušteno slučaju, potvrđuje i sprovedeni sistem ventilacije kojim se kontroliše protok i vlažnost vazduha, i osigurava povoljna mikroklima u stanu.
Dosledno dizajniran do najsitnijeg detalja, ovaj stan je primer uspešnog projektovanja unutrašnjeg prostora, kojim se prevazilaze svi nedostaci.
_detalji.png)
PLAN
_osnova.jpeg)
Projekat i fotografije: INT2 Architecture
Tekst: Jelena Tasovac Ranković, Kuća stil