Prostor stana od 110 m², pored sofisticiranog arhitektonskog izraza, savršeno je funkcionalan i isprojektovan po meri moderne gradske porodice sa troje dece. Već na samom ulazu oseća se kosmopolitski duh u savršenom kontrastu crne i bele.
.jpg)
Ulazna zona je kompaktna, sa ugradnim plakarima sa obe strane. Crna vrata i fioke osmišljene su kao akcenat na belim zidovima sa naglašenim dekorativnim elementima. Po rečima arhitekte Ane Nenadović, ovaj stan je hrabar vrtlog energija, stilova i boja doveden do perfekcije i bez straha da je bilo šta suvišno. Taj princip na najbolji način oslikava zid sa muralom balerine, koji je ukrašen dekorativnim lajsnama i zidnim svetiljkama sa kristalima, kao savršen uvod u prostor dnevne zone.
.jpg)
Topla boja parketa povezuje ceo stan u jednu celinu, koja je podeljena na dnevnu i noćnu zonu. U okviru dnevne zone je dnevni boravak sa trpezarijom i otvorenom kuhinjom, kao i soba za igru, dok je noćna zona podeljena na roditeljsku spavaću sobu i dečiju sobu.
.jpg)
"Zadatak arhitekte je da od dobijenih sastojaka (prostor, zahtevi i želje klijenta, energija , budžet, tržište, ideje, inspiracija) napravi najlepši kolač i doda tajne začine koji daju jedinstven lični pečat svakom prostoru", navodi Ana Nenadović, diplomirani dizajner enterijera.
.jpg)
Dnevni boravak dizajniran je svedeno, po principu manje-je-više. Beli zidovi naglašavaju fantastičnu komodu sa bakarnim detaljima. Dve stone lampe i dekoracija, pretvaraju zid na kome je smešten televizor u pravo malo remek-delo. Sofa i otoman obučeni su u mekani zagasito-braon štof, dok zlatni jastuci od pliša prate drapere koji u ceo prostor unose dodatnu notu topline i luksuza.
.jpg)
Prostor trpezarije je u dubini sobe i definisan je masivnim drvenim stolom u duhu klasicizma i klupom koja na odličan način rešava problem uske trpezarije. Dva kristalna lustera i klasične stolice u boji crvenog vina savršeno su naglašene modernim tapetom sa teksturom ispranog betona.
.jpg)
Kuhinja je belim portalom od dekorativnih lajsni uokvirena u ram tako da izgleda kao slika na zidu. U francuskom stilu, prozračna belina presečena je modernom radnom pločom izrađenom od braon kamena i tapetom u istoj nijansi. Šank je poseban element koji na predivan način smiruje kompoziciju stilova i povezuje sve u jednu ambijentalnu celinu.
.jpg)
Enterijer roditeljske spavaće sobe je sofisticiran i nežan. Prostor je podeljen na dva dela – prostor za spavanje i veliki garderober. Mural sa motivom grčkih bogova Here i Zevsa, moderan dizajn kreveta, minimalistički noćni ormarići i zidne lampe kreiraju savršeno romantičan ambijent.
.jpg)
Dečiju sobu definiše igra crne i bele boje. Originalan dizajn kreveta na sprat perfektno je uklopljen u prostorni koncept sobe uz radni sto za dvoje. U okviru sobe je dečije kupatilo, a plakari se nalaze na ulazu u sobu.
.jpg)
London je bio inspiracija za dizajn sobe za igru. Mural Trafalgar skvera i prepoznatljiva crvena telefonska govornica kreiraju urban ambijent.
.jpg)
Ana Nenadović kaže da je večita polemika oko toga da li je manje – više ili je više – kič. Oba principa su ispravna samo je važno da čovek sam prepozna kojoj kategoriji pripada.
.jpg)
Strah ne treba da postoji jer, kao što se vidi iz primera ovog porodičnog stana, intenzivni elementi enterijera, međusobno se dopunjuju sa upečatljivo dizajniranim komadima nameštaja u savršenoj fuziji funkcionalnosti i dizajna u službi lepote svakodnevnog života jedne urbane beogradske porodice.

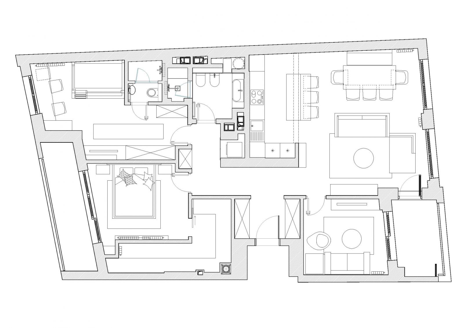
Osnova stana
"Kada je dizajn enterijera u pitanju, izuzetno je važno osetiti energiju ljudi koji će živeti u tom prostoru. Važno je slušati reči, ali suština i energija su uvek jači od reči i na to treba posebno obratiti pažnju kako bi se osmislio savršen prostor po meri klijenta", objašnjva Ana Nenadović.
Ana Nenadović, diplomirani dizajner enterijera
Tekst: Marijana Kaštelan Milenković
Tagovi: