PRIJAVA ZA NEWSLETTER:

 

Atraktivna četvorosobna kuća sa potkrovljem (DETALJAN PLAN)

  • Objavljeno:
  • 16.8.2017

Dve terase u potkrovlju, garaža dovoljna za dva automobila, terasa u prizemlju i vrlo atraktivan dizajn celokupne kuće čine je nepogrešivim izborom za svaku porodicu koja želi udoban, funkcionalan i komforan dom.

 

Predstavljamo vam detaljan plan prelepe četverosobne kuće s uređenim potkrovljem čija površina iznosi 109.41 m². Osim prelepog spoljašnjeg izgleda, enterijer pruža gotovo neograničene mogućnosti za uređenje o čemu svedoči i dizajn enterijera koji predstavljamo u nastavku.

 


   Solarni krov stiže - jeftiniji od crepa

 

  Kompanija Tesla Elona Maska otvorila je prednarudžbine za svoj solarni krov koji koji bi trebalo    da košta 21,85 dolara po kvadratnom metru.


 

Ukoliko planirate da gradite sopstvenu kuću, ova fenomenalna porodična kuća mogla bi da bude jedna od vaših opcija. Sa četiri spavaće sobe biće vrlo komotra za višečlanu porodicu, a raspored prostorija omogućava vrlo dobru organizaciju i funkcionalnost.

 

Dve terase u potkrovlju, garaža dovoljna za dva automobila, terasa u prizemlju i vrlo atraktivan dizajn celokupne kuće čine je nepogrešivim izborom za svaku porodicu koja želi udoban, funkcionalan i komforan životni prostor.

 

 

 

 

OSNOVNI PODACI

 

Površina kuće: 178,78 m²

Površina garaže: 29,12 m²

Visina kuće: 9,07 m

Kosina krova: 40°

Minimalna širina parcele: 21,81 m

Broj spavaćih soba: 4 (1+3)

 

 

 

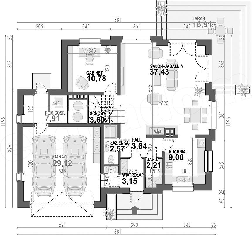
PRIZEMLJE

 

1. Ulaz 3,15 m²
2. Hodnik 3,64 m²
3. Kupatilo 2,57 m²
4. Garderoba 2,21 m²
5. Kuhinja 9 m²
6. Dnevni boravak + trpezarija 37,43 m²
7. Soba 10,78 m²
8. Stepenice 3,6 m²
9. Kotlarnica 7,91 m²
10. Garaža 29,12 m²

Ukupna površina: 109,41 m²

 

 

 

 

POTKROVLJE

 

1. Hodnik 5,77 m²
2. Prva soba 11,62 m² (18,48 m²)
3. Kupatilo 7,29 m² (11,56 m²)
4. Kupatilo 8,59 m² (12,96 m²)
5. Garderoba 4,19 m² (8,33 m²)
6. Druga soba 17,74 m² (22,65 m²)
7. Treća soba 14,17 m²

Ukupna površina: 69,37 m² (93,92 m²)

 

 

 

Kada je reč o dizajnu enterijera, mogućnosti su gotovo neograničene, o čemu svedoči i predlog dizajna koji sledi u nastavku. 

 

 

 

Kreativne i korisne ideje i savete za uređenje enterijera potražite u rubrici ENTERIJER